
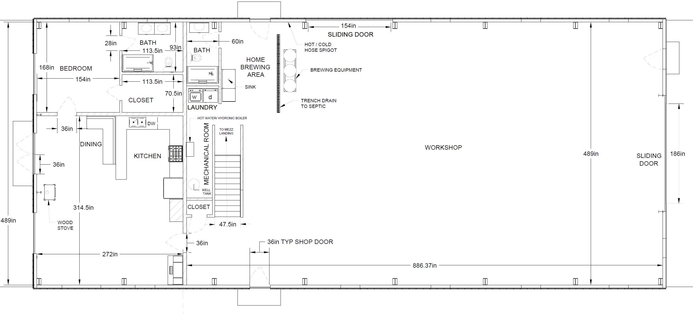
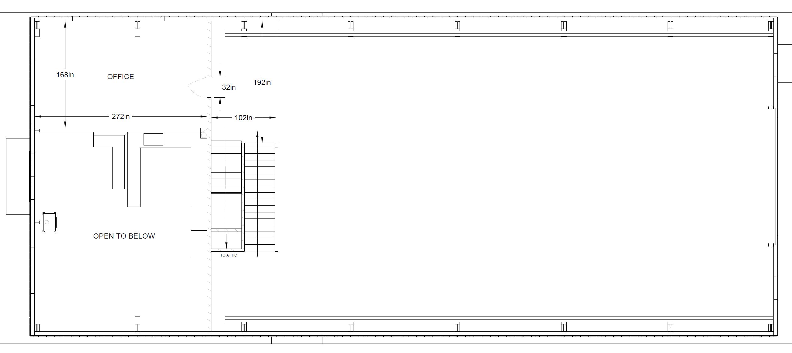
We designed a 42’x100′ rectangular building that will function as a workshop with a divided 900 sq ft living space in one end. In order to have the option to build a separate house in the future, the “additional dwelling unit” (ADU) in the shop cannot exceed 900 sq ft. The living space is a fully functional one bedroom apartment on the ground floor. The living space is in the North facing part of the building with plenty of windows to view Mt. Adams. The workshop has a crane integrated in the structure, a brewing area, designated spaces for woodworking, metal working, welding, a bathroom, and an office on the second floor. An attic the length of the building will also be framed out for storage.
The building utilizes a combination of wood and steel. Steel beams are spaced every 14 ft along the two long sides of the building. The rest of the framing is done with wood, similar to a house. The main difference from a typical house construction is that we are using horizontal wood girts instead of vertical studs. Metal brackets are welded to the steel beams, which wood can be easily screwed to. We are using asphalt shingles for the roof and zinc siding. We chose zinc because of it’s sleek look and durability. It’s fire resistant and it lasts nearly 100 years, unlike other metal siding options that require frequent painting and maintenance.











